I Klithuset er der faciliteter og plads til maks. 60 personer.

Salen

I salen er der 11 klapborde i 160×80 cm. Derudover er der 11 runde bordplader med diameter på 120 cm til 6 personer samt 8 runde bordplader med diameter på 150 cm til 8 personer.

Se inspiration til bordopstillinger her:

Bryllup med hovedbord og små runde borde
Bryllup med hovedbord og store runde borde
Bryllup med lange borde
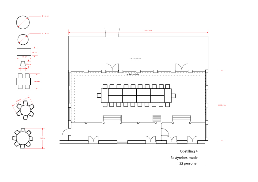
Bestyrelsesmøde
Konference med fleks borde
Konference med små runde borde
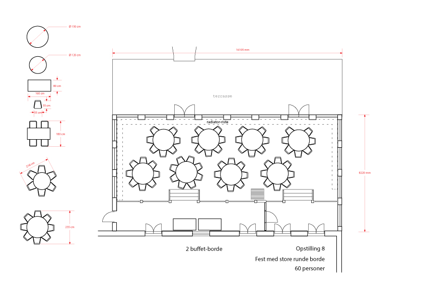
Fest med store runde borde
Fest med dansegulv og store runde borde
Fest med dansegulv og små runde borde
Konference med møde- og spiseborde

Se plantegninger her:
Download plantegninger

AV-udstyr

AV-udstyr inkluderer projektor i loftet, lærred, højtaler indbygget i loftet. Vi tilbyder desuden trådløs deling fra mobile enheder til projektor via ClickShare.

Køkkenet

Klithuset indeholder et fuldt udstyret industrikøkken i kælderen med køkkenelevator til begge etager. Køkkenet indeholder blandt andet:

  • Industriovn
  • Industriopvaskemaskine
  • Industrikomfur
  • Tre store køleskabe
  • En fryser
  • Kaffemaskine
  • Diverse køkkenmaskiner
  • Stor Weber kul-kuglegrill på 1 meter i diameter til udendørs brug (medbring selv kul)

Se service og øvrige køkkenfaciliteter her.

Værelser

Der er dyner og hovedpuder på værelserne (og til opredning på sovesofa), og man medbringer selv sengelinned og håndklæder, med mindre man ønsker at leje via Klithuset.
Prisen er 160 kr. per sæt som indeholder sengelinned og håndklæder. Opredning pr. seng koster kr. 120. Hvide duge kan lejes for kr. 75 per stk. og stofservietter for kr. 10 per stk.

Desuden findes der mindre TV med Chromecast, hårtørrer, strygebræt og strygejern, samt 2 x trip trap barnestole, 1 med baby indsats, 1 puslebord og 2 x weekendsenge til børn.

Download huskeseddel til Klithusets lejere.

Klithuset
Værelse på Klithuset
Køkken
Klithuset
Klithuset
Privacy Overview

This website uses cookies so that we can provide you with the best user experience possible. Cookie information is stored in your browser and performs functions such as recognising you when you return to our website and helping our team to understand which sections of the website you find most interesting and useful.