Klithuset som konferencested med overnatning er især velegnet til grupper på op til 26 personer, såfremt enkeltværelser ønskes:

  • 14 værelser i Klithuset
  • 8 værelser i Tropehuset
  • 3 værelser i JL-Huset
  • 1 værelse i Styrmandshuset

I konferenceprisen er 1 opredning pr. værelse + håndklæder, sæbe og shampoo inkluderet. Hvis yderligere opredning ønskes, er prisen kr. 280 per opredning. Der betales ekstra for leje af duge og servietter.

Vores samlede kapacitet for et dagsmøde er max 30 personer.

Klithuset har sit særkende ved at være Lauritzen-gruppens eget hus. Vi udlejer ikke til det åbne marked.

Der er kun personale ved ankomst og afrejse samt på tilkaldevagt. Service-niveauet aftales med vores daglig leder, der henviser til eksterne leverandører med henblik på forplejning.

Alle aftaler laves direkte med den daglige leder i god tid før arrangementet. Vi beder vores gæster huske, at vi ikke driver offentlig hotel- og konferencevirksomhed, ligesom vi heller ikke er bemandet som hotel. Derfor er det vigtigt at få dialog med daglig leder, der kan vejlede om catering- og kursuspakke tilpasset kundens behov.

Download brochure om Klithuset

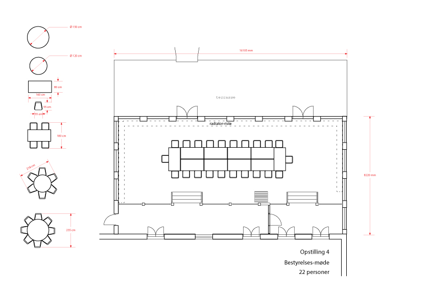
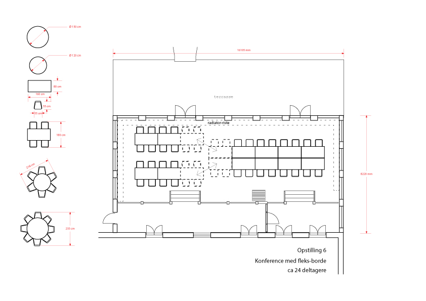
Inspiration til bordopstilling

 

Konference med møde- og spiseborde
Konference med små runde borde
Konference med fleks borde
Bestyrelsesmøde

Klithuset producerer ikke selv frokoster og middage, men vi kan tilbyde afprøvede koncepter i forskellige prisklasser med leverandører, som vi har erfaring med. Der tilbydes alt fra almindelig hverdagsmad over sandwiches, arbejdsfrokoster og mid-dage til raffinerede og elegante selskabsmenuer. Alle vores leverandører kan tilbyde et team af professionelle medarbejdere efter aftale. Opdækningspakke (duge, lys, servietter og blomster) kan aftales.

Vi anbefaler professionel forplejning via Jacob Ernst.

Læs mere om Jacob Ernsts mødepakker

Teambuidling

Hvis I vælger at lave teambuildingaktiviteter i køkkenet, henstiller vi til max. 12 deltagere og at der er ekstern personale på til opvask og oprydning.

 

 

Før arrangementet

Under arrangementet

Generelt

  • Ankomst- og afrejsetidspunkt aftales med daglig leder.
  • Bordopstilling aftales med daglig leder.
  • Senest 5 dage før ankomst fremsendes værelsesfordeling.
  • Daglig leder orienteres om planlagte aktiviteter og cater.
  • Konference ansvarlig møder en time før øvrige deltageres ankomst til introduktion.
  • På dagen introduceres mødelederen til AV-udstyr af daglig leder.
  • Daglig leder modtager gæster og udleverer værelsesnøgler, men er i øvrigt ikke til stede.
  • Mad og drikke må IKKE medbringes på værelserne.
  • Sengelinned er pålagt sengene og håndklæder vil ligge tilgængeligt på værelserne. Ved afrejse lægges brugt sengetøj på gulvet.
  • Klithuset har trådløst netværk i hele huset. AV-udstyr inkluderer projektor i loftet, lærred, TV, musikanlæg, kopimaskine til rådighed. Vi tilbyder desuden trådløs deling fra mobile enheder til projector med ClickShare.
Privacy Overview

This website uses cookies so that we can provide you with the best user experience possible. Cookie information is stored in your browser and performs functions such as recognising you when you return to our website and helping our team to understand which sections of the website you find most interesting and useful.